Layihələrə qayıt
1 / 2
Tamamlanmış
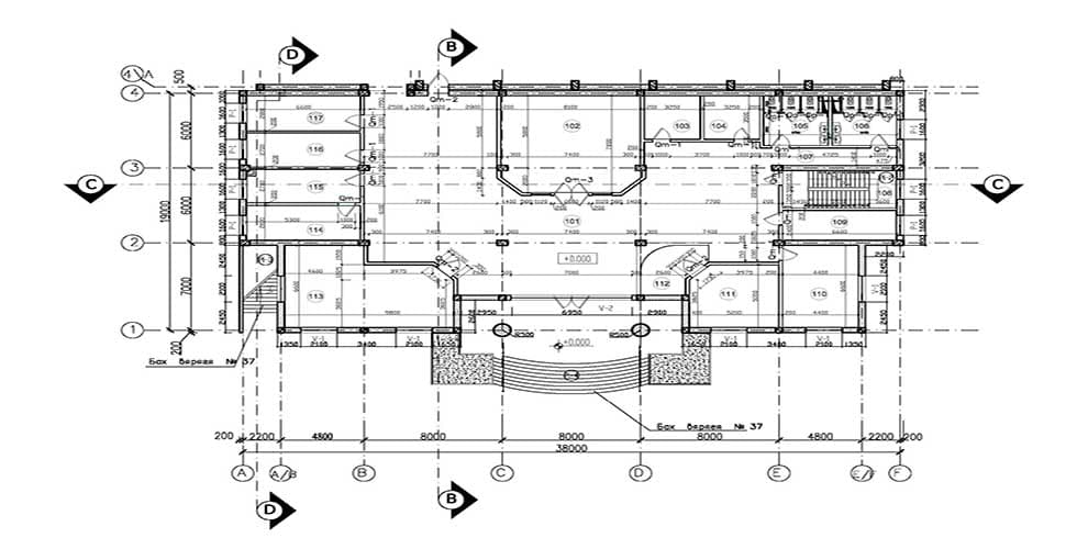
CONSTRUCTION OF CHECKPOINTS AT NATIONAL GYMNASTICS ARENA
Construction of 6 checkpoints with stone cladding and glass frontage at National Gymnastics Arena (NGA). Location: Baku, street yard 264, H.Aliyev ave. 108 (near Koroghlu m/s).


